Project Details

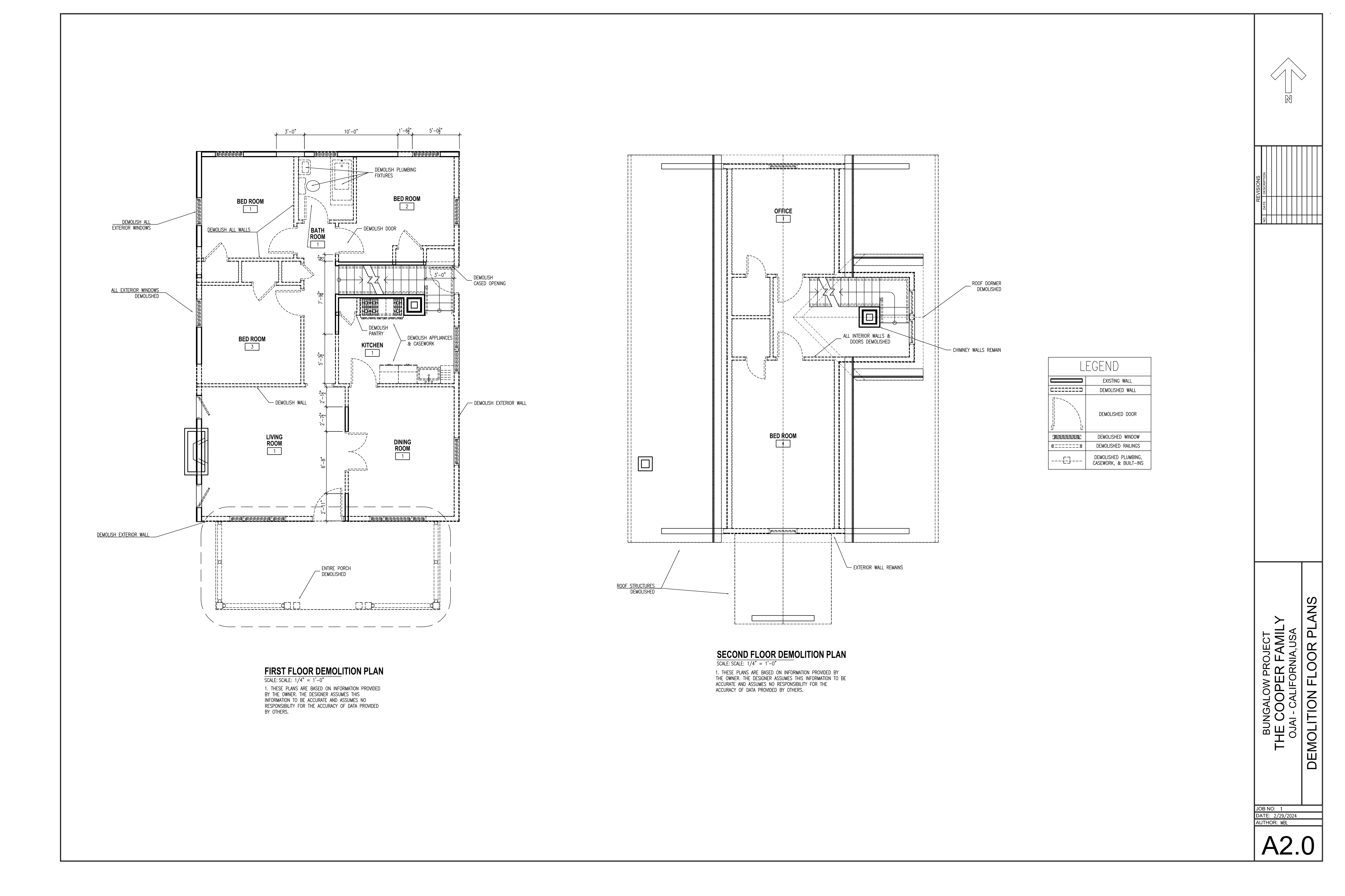
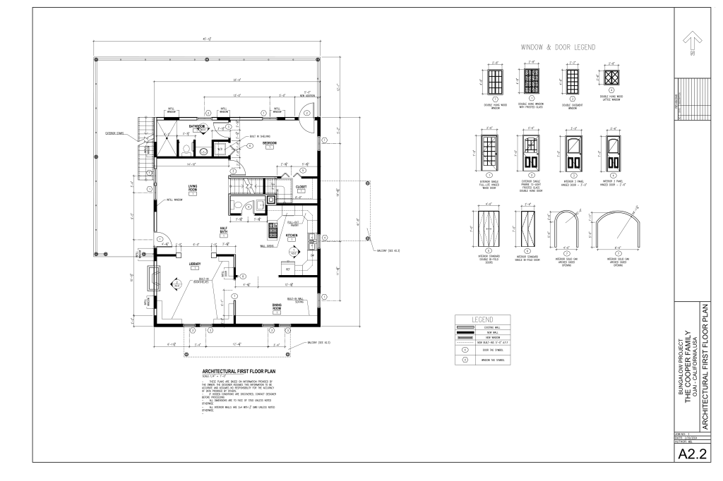
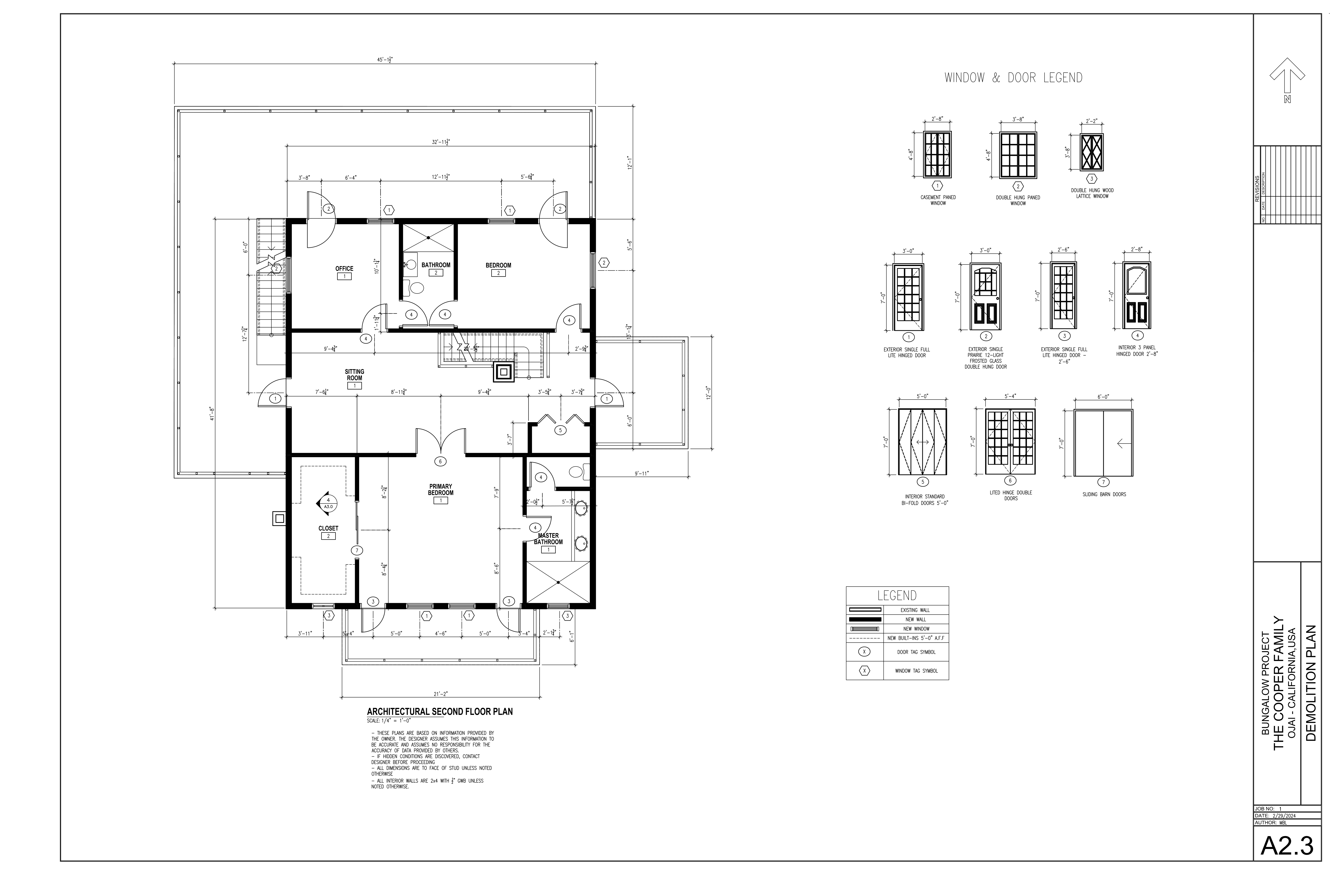
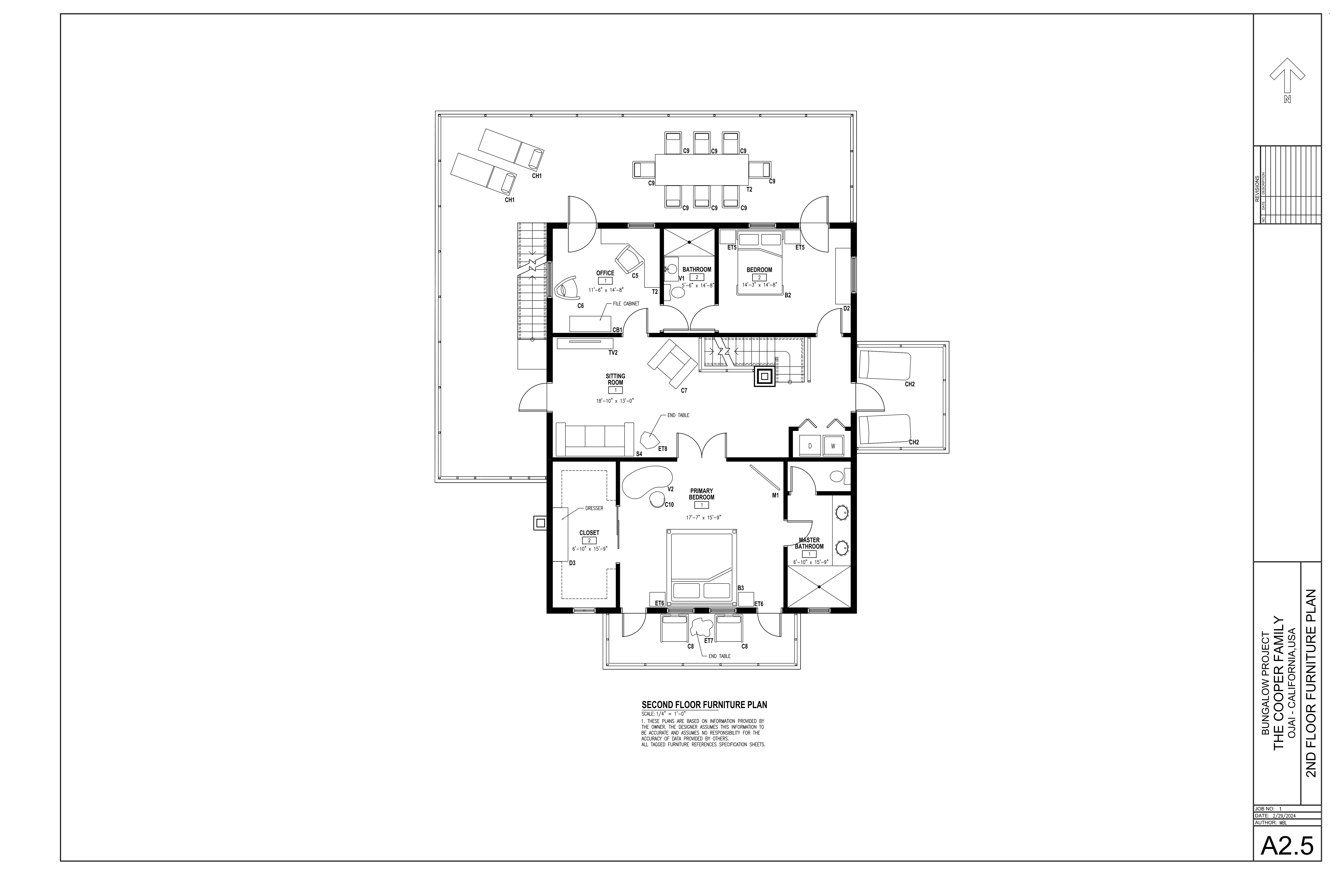
For this project, I was assigned to renovate a two-story bungalow to the style of my choice. By generating construction documents, hand renderings (marker & colored pencil), FF&E selections, SPEC sheets, budgeting, schedules, and presentation materials, I fully renovated a bungalow to fit the style of the Swiss Chalet Revival. In this project, the main priority was making the home ADA accessible, considering details such as grab bars, accessible counter heights, accessible appliances, and more.

board 1

Board 2

board 3

My Portfolio
For an easy viewing of my most current projects’ highlights, take a look at my portfolio!










